L-116XDom z bali w stylu beskidzkim z trzema sypialniami

Odbicie lustrzane:
Cena:
3 300,00 zł
Karta katalogowa:

L-116X to porządny dom z bali, co trzyma się jak beskidzka chałupa. Na dole wielga izba dzienna z kominkiem i kuchnią, a do tego łazienka i pomieszczenie techniczne. Na górze trzy przytulne pokoje i druga łazienka, tak że każdy ma swoje miejsce. Projekt łączy tradycyjny góralski klimat z wygodą do całorocznego mieszkania. Domy z bali w najlepszym wydaniu.

Czytaj więcej

Opis projektu
Rzuty i przekroje
Realizacje

Opis projektu

L-116X to dom z bali, co już na pierwszy rzut oka przypomina porządną, beskidzką chałupę, ale zaplanowaną tak, żeby żyło się w niej wygodnie przez cały rok. Zgrabna bryła, dwuspadowy dach pod kątem 40 stopni i elewacja z naturalnego drewna sprawiają, że budynek wpasuje się i w wiejski krajobraz, i w leśną polanę, i w teren górski. Projekt czerpie z tradycji, ale daje współczesny komfort, więc rodzina będzie tu mieć wszystko, czego potrzeba.

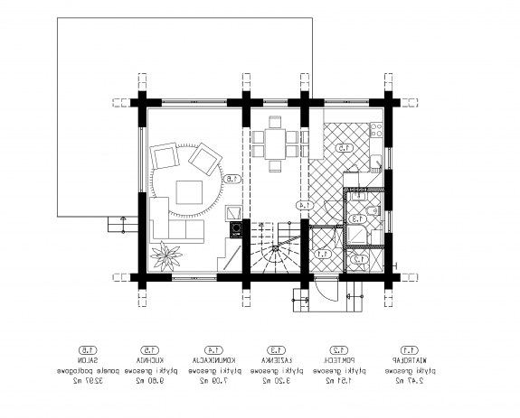
Na parterze czeka przestronny salon 32.97 m² z miejscem na kominek oraz wyjściem na taras. Obok niego kuchnia 9.60 m² i funkcjonalny hol. Parter uzupełniają łazienka 3.20 m², wiatrołap 2.47 m² i pomieszczenie techniczne, co jest dużym atutem przy całorocznym użytkowaniu. Układ jest poukładany jak trzeba, bez tracenia metrów i bez nielogicznych zakamarków.

Na poddasze prowadzą drewniane schody. Tam znajdziemy trzy pokoje o powierzchniach użytkowych 8.06 m², 10.17 m² i 10.76 m² oraz wygodną łazienkę 6.99 m². To idealna część nocna, gdzie każdy domownik ma swoje miejsce, a goście mogą liczyć na pełen komfort. Skosy i drewno dodają klimatu, który trudno znaleźć w murowanych budynkach.

Dzięki przemyślanej konstrukcji z bali, solidnemu ociepleniu i dobrze zaplanowanym instalacjom L-116X spełnia wymagania domu całorocznego. To projekt, który łączy tradycję, wygodę i trwałość. Domy z bali w takim wydaniu mają swój charakter i ciepło, którego nie da się podrobić.

Przegrody zewnętrzne i wewnętrzne nośne

Ściany zewnętrzne – z bala drewnianego grubości 30 cm + 10 cm ocieplenia oraz w konstrukcji szkieletowej, pełnią rolę konstrukcyjną nośną konstrukcji stropu, dachu i przegrody termicznej.

Ściany fundamentowe - znajdują się częściowo w gruncie, zaprojektowano jako ściany z bloczków betonowych lub wylewane do poziomu izolacji poziomej ściany.

Dane techniczne

Powierzchnia użytkowa97.68 m²
Powierzchnia zabudowy72.00 m²
Powierzchnia całkowita144.00 m²
Kubatura netto395.00 m³

Projekty podobne

Następny

Masz jeszcze pytania lub wątpliwości dotyczące wyboru?

 

Masz jeszcze pytania lub wątpliwości
dotyczące wyboru?

Jak tak, to zadzwoń do nas lub napisz. Chętnie odpowiemy na wszystkie pytania, a w razie potrzeby prześlemy dodatkowe rysunki.

Potrzebujesz dodatkowych informacji - jesteśmy do Twojej dyspozycji!

Wybrałeś już projekt - to świetnie! Teraz swój projekt zamów u nas.

 

Wybrałeś już projekt - to świetnie!
Teraz swój projekt zamów u nas.

Telefonicznie, przez formularz (koszyk) lub napisz e-mail.

Pamiętaj o podaniu danych wysyłkowych, formy płatności (pobranie, przelew), wersji projektu (podstawowa czy lustrzane odbicie) oraz planowanych zmian. Zadbamy, abyś otrzymał zgodę na zmiany. Nie zapomnij zapytać o rabat oraz dodatki do projektu (dziennik budowy, tablica budowy).

Baza wiedzy

Zajrzyj także do naszej bazy wiedzy