L-302 midi plus murnowoczesna stodoła w tech. tradycyjnej

Odbicie lustrzane:
Cena:
2 900,00 zł
Karta katalogowa:

L-302 midi plus mur to nowoczesny dom typu stodoła z poddaszem użytkowym. Prosty dwuspadowy dach, dwie ślepe ściany umożliwiające zbliżenie do granicy działki i funkcjonalny układ pomieszczeń sprawiają, że to idealny projekt na małą, kwadratową parcelę.

Czytaj więcej

Opis projektu
Rzuty i przekroje

Opis projektu

Ściany zewnętrzne

Na parterze i poddaszu - zaprojektowano ściany z bloczków betonu komórkowego grubości 24 cm ocieplone wełną mineralną gr. 10 cm. Ściany fundamentowe wylewane lub murowane z bloczków betonowych do poziomu izolacji poziomej ściany, dodatkowo ocieplone od wewnątrz styropianem gr.8 cm.

Ściany wewnętrzne parteru – ścianki murowane z bloczków betonu komórkowego gr.12cm.

Ściany wewnętrzne poddasza – ścianki z konstrukcji szkieletowej gr.12 cm wypełnione wełną mineralną.

 

Projekt domu L-302 midi plus mur – nowoczesna stodoła na małą działkę

L-302 midi plus mur to funkcjonalny projekt domu parterowego z poddaszem użytkowym, zaprojektowany w duchu nowoczesnej stodoły. Prosta bryła z dwuspadowym dachem, elewacja łącząca naturalne drewno i grafitowy tynk oraz przemyślany układ pomieszczeń sprawiają, że dom jest jednocześnie nowoczesny i przytulny.

Dom doskonale wpisuje się w wąskie lub kwadratowe działki – jego kompaktowe wymiary (11,6 x 10,0 m) pozwalają na realizację inwestycji już na parceli o szerokości od 18,6 m. Dodatkowym atutem są dwie ślepe ściany, dzięki którym budynek można zbliżyć do granicy działki na 3 m, co znacznie zwiększa możliwości usytuowania domu.

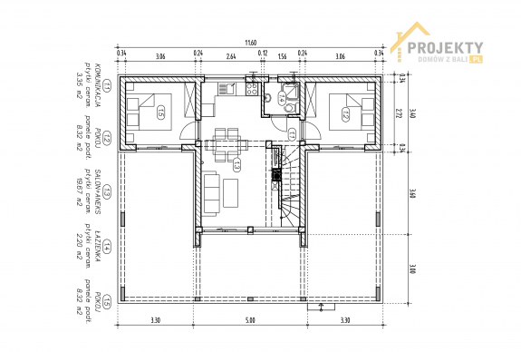
Układ pomieszczeń

Na parterze zaplanowano wygodną strefę dzienną z salonem, aneksem kuchennym i wyjściem na taras. Do dyspozycji są także dwie komfortowe sypialnie oraz obszerna łazienka z prysznicem.
Poddasze mieści dwie dodatkowe sypialnie i WC, co pozwala na elastyczne wykorzystanie przestrzeni – idealne rozwiązanie dla rodziny 2+2 lub jako dom wakacyjny.

Zalety projektu

  • prosty, ekonomiczny w budowie dwuspadowy dach,

  • dwie ślepe ściany umożliwiające usytuowanie budynku bliżej granicy działki,

  • przemyślany układ funkcjonalny z czytelnym podziałem na strefy dzienną i nocną,

  • atrakcyjna, ponadczasowa stylistyka typu nowoczesna stodoła,

  • możliwość realizacji na niewielkiej działce,

  • tradycyjna, solidna technologia murowana.

L-302 midi plus mur to projekt, który łączy prostotę formy z komfortem codziennego użytkowania. Świetny wybór dla osób szukających kompaktowego, ekonomicznego i nowoczesnego domu o przyjaznej architekturze.

 

 

Dane techniczne

Powierzchnia użytkowa58.00 m²
Powierzchnia zabudowy58.30 m²
Powierzchnia całkowita116.60 m²
Kubatura netto507.00 m³
Kąt nachylenia dachu45°
Wymiary budynku
długość x szerokość
11.60 x 10.00 m
Wysokość budynku7.11 m

Projekty podobne

Następny

Masz jeszcze pytania lub wątpliwości dotyczące wyboru?

 

Masz jeszcze pytania lub wątpliwości
dotyczące wyboru?

Jak tak, to zadzwoń do nas lub napisz. Chętnie odpowiemy na wszystkie pytania, a w razie potrzeby prześlemy dodatkowe rysunki.

Potrzebujesz dodatkowych informacji - jesteśmy do Twojej dyspozycji!

Wybrałeś już projekt - to świetnie! Teraz swój projekt zamów u nas.

 

Wybrałeś już projekt - to świetnie!
Teraz swój projekt zamów u nas.

Telefonicznie, przez formularz (koszyk) lub napisz e-mail.

Pamiętaj o podaniu danych wysyłkowych, formy płatności (pobranie, przelew), wersji projektu (podstawowa czy lustrzane odbicie) oraz planowanych zmian. Zadbamy, abyś otrzymał zgodę na zmiany. Nie zapomnij zapytać o rabat oraz dodatki do projektu (dziennik budowy, tablica budowy).

Baza wiedzy

Zajrzyj także do naszej bazy wiedzy