L-308 XL-308 X – Większy wymiar komfortu w domu z bali

Odbicie lustrzane:
Cena:
3 300,00 zł
Karta katalogowa:

Przedstawiamy L-308 X – nowy, samodzielny projekt w naszej ofercie, który wynosi komfort mieszkania w domu z bali na wyższy poziom. To ewolucja bestsellerowego modelu L-308, ale o znacznie większej powierzchni i rewolucyjnym układzie. Łączy sprawdzony, funkcjonalny parter z przestronnym, apartamentowym poddaszem. Blisko 120 m² powierzchni użytkowej zostało rozplanowane tak, by zapewnić komfort dużej rodzinie, przy zachowaniu możliwości budowy na zgłoszenie (pow. zabudowy 87,36 m²).

Czytaj więcej

Opis projektu
Rzuty i przekroje

Opis projektu

L-308 X – Przestronny dom z bali z apartamentem na poddaszu

Przedstawiamy L-308 X – nowy, samodzielny projekt w naszej ofercie, który wynosi komfort mieszkania w domu z bali na wyższy poziom. To ewolucja bestsellerowego modelu L-308, ale o znacznie większej powierzchni i rewolucyjnym układzie. Łączy sprawdzony, funkcjonalny parter z przestronnym, apartamentowym poddaszem. Blisko 120 m² powierzchni użytkowej zostało rozplanowane tak, by zapewnić komfort dużej rodzinie, przy zachowaniu możliwości budowy na zgłoszenie (pow. zabudowy 87,36 m²).

Główne korzyści i wyróżniki:

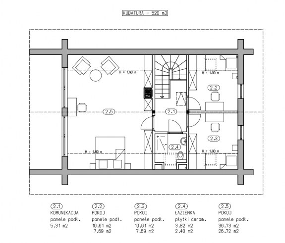
  • Rewolucja na poddaszu – apartamentowa przestrzeń: To, co wyróżnia L-308 X na tle innych projektów, to poddasze. Zamiast trzech małych sypialni powstał jeden ogromny pokój o powierzchni 36,73 m² (26,72 m² pow. użytkowej). To idealne miejsce na apartament głównej sypialni z garderobą i strefą relaksu, dużą salę zabaw dla dzieci lub domowe kino. Dwa dodatkowe, jasne pokoje (po 10,61 m²) oraz łazienka dopełniają tę wyjątkową strefę.

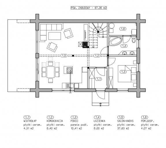
  • Funkcjonalny i przestronny parter: Parter o powierzchni 69 m² to otwarta strefa dzienna. Salon z aneksem kuchennym (37,83 m²) został zaprojektowany z myślą o spotkaniach rodzinnych. Znajduje się tu również osobny pokój (idealny jako gabinet lub sypialnia dla gości), obszerna łazienka (6,0 m²) i pomieszczenie gospodarcze – luksus, którego brakowało w pierwowzorze.

  • Ponadczasowy styl i solidna konstrukcja: Dom zachował prostą bryłę, duże przeszklenia i klasyczny dach dwuspadowy (40°). Ściany z bala drewnianego o grubości 35 cm gwarantują doskonałe parametry termoizolacyjne i niepowtarzalny klimat.

  • Nowoczesne instalacje z myślą o przyszłości: Projekt L-308 X uwzględnia nowoczesne rozwiązania, takie jak instalacja fotowoltaiczna wspomagająca ogrzewanie elektryczne, kominek w salonie oraz szczegółową analizę systemów alternatywnych (pompa ciepła, gaz). To daje inwestorowi elastyczność i gotowość na wybór najbardziej ekonomicznego źródła ciepła.

Szczegółowy opis projektu:
Projekt L-308 X to odpowiedź na potrzeby rodzin, które cenią sobie przestrzeń, funkcjonalność i oryginalne rozwiązania, a jednocześnie nie chcą rezygnować z przytulnego klimatu domu z bali.

Na parterze tętni życie – znajduje się tu otwarta, przestronna strefa dzienna (salon z aneksem jadalnianym i kuchennym) o powierzchni blisko 38 m², idealna do spędzania czasu z bliskimi. Duże przeszklenia wpuszczają mnóstwo światła, a wyjście na taras łączy wnętrze z ogrodem. Na parterze zaprojektowano też oddzielny pokój (np. dla gości, teściów lub jako gabinet), przestronną łazienkę z wanną oraz praktyczne pomieszczenie gospodarcze, które pomoże utrzymać porządek w strefie dziennej.

Prawdziwym "sercem" projektu L-308 X jest jednak poddasze. Zamiast standardowego podziału na trzy ciasne sypialnie, powstała tam unikalna, wielofunkcyjna przestrzeń. Główne pomieszczenie o imponującej powierzchni 36,73 m² (ponad 26 m² pow. użytkowej) możesz dowolnie zaaranżować:

  • Wersja apartamentowa: jako królewska sypialnia rodziców z wydzieloną garderobą i strefą wypoczynkową z fotelami i książką.

  • Wersja rodzinna: jako duża sala zabaw dla dzieci, która może być ich wspólnym królestwem.

  • Wersja relaksowa: jako domowa strefa relaksu z kinem domowym, biblioteką i miejscem do ćwiczeń.

Dwa dodatkowe, jasne pokoje (każdy o pow. użytkowej ok. 7,7 m²) doskonale sprawdzą się jako sypialnie dla dzieci, pokoje gościnne lub domowe biuro. Całości na poddaszu dopełnia wygodna łazienka.

L-308 X to więcej niż dom – to elastyczna przestrzeń, która rośnie wraz z potrzebami rodziny. To propozycja dla tych, którzy szukają komfortu, prestiżu, oryginalności i ponadczasowego stylu w wydaniu z bala.

Dane techniczne projektu L-308 X:

ParametrWartość
Powierzchnia użytkowa118,83 m²
Powierzchnia zabudowy87,36 m²
Kubatura520,00 m³
Wymiary budynku (dł. x szer.)7,80 m x 11,20 m
Wysokość budynku7,58 m
Kąt nachylenia dachu40°
Liczba pokoi4 (salon + 3 pokoje) + możliwość dowolnej aranżacji poddasza
Łazienki2 (parter i poddasze)
GarażOpcjonalny (projekt podstawowy bez garażu)
Technologia ścianBale drewniane 35 cm + ocieplenie
OgrzewanieElektryczne (wspomagane fotowoltaiką) + kominek
KategoriaBudynek jednorodzinny, I kategoria, niepodpiwniczony

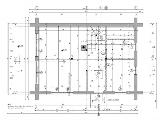
Rzuty i układ pomieszczeń:

  • Parter (69,02 m²): Wiatrołap (4,31 m²), komunikacja (6,40 m²), pokój (10,41 m²), łazienka (6,00 m²), salon z aneksem kuchennym (37,83 m²), pom. gospodarcze (4,07 m²).

  • Poddasze (67,08 m² pow. podłogi / 49,81 m² pow. użytkowa): Komunikacja (5,31 m²), duży pokój główny (36,73 m² / 26,72 m²), dwa pokoje (2x 10,61 m² / 2x 7,69 m²), łazienka (3,82 m² / 2,43 m²).


Szybkie porównanie L-308 vs L-308 X

CechaL-308 (bestseller)L-308 X (nowość)
Pow. użytkowa75,01 m²118,83 m² (o 58% więcej!)
Wymiary7,00 x 8,70 m7,80 x 11,20 m
Pow. zabudowy60,90 m²87,36 m²
Układ poddasza2 pokoje (łącznie ok. 22 m²) + łazienkaOgromny pokój główny (36,7 m²!) + 2 pokoje + łazienka
Pokój na parterze9,00 m²10,41 m²
Salon21,71 m²37,83 m²
Pom. gosp.Brak4,07 m²
InstalacjeOgrzewanie elektryczne + kominek+ fotowoltaika, analiza alternatywnych źródeł

Proponowany, źródłem ciepła jest pompa ciepła powietrze-woda Vitocal 200-S typ D10, R32 1 fazowa składająca się z:

  • jednostki wewnętrznej z wbudowanym buforem wody grzewczej o pojemności 16 l,
  • wbudowanym elektryczny podgrzewaczem przepływowym wody grzewczej sterowany stopniowo o mocy 8 kW
  • oraz jednostki zewnętrznej wraz ze zbiornikiem na c.w.u. Vitocell 100-V typ CVWC o pojemności 250 litrów marki Viessmann


 

Dane techniczne

Powierzchnia użytkowa118.83 m²
Powierzchnia zabudowy87.36 m²
Powierzchnia dachu193.00 m²
Powierzchnia całkowita174.72 m²
Kubatura netto520.00 m³
FunkcjonalnościBez garażu
KondygnacjePodasz użytkowe
PiwnicaNie
Technologiabale

Projekty podobne

Masz jeszcze pytania lub wątpliwości dotyczące wyboru?

 

Masz jeszcze pytania lub wątpliwości
dotyczące wyboru?

Jak tak, to zadzwoń do nas lub napisz. Chętnie odpowiemy na wszystkie pytania, a w razie potrzeby prześlemy dodatkowe rysunki.

Potrzebujesz dodatkowych informacji - jesteśmy do Twojej dyspozycji!

Wybrałeś już projekt - to świetnie! Teraz swój projekt zamów u nas.

 

Wybrałeś już projekt - to świetnie!
Teraz swój projekt zamów u nas.

Telefonicznie, przez formularz (koszyk) lub napisz e-mail.

Pamiętaj o podaniu danych wysyłkowych, formy płatności (pobranie, przelew), wersji projektu (podstawowa czy lustrzane odbicie) oraz planowanych zmian. Zadbamy, abyś otrzymał zgodę na zmiany. Nie zapomnij zapytać o rabat oraz dodatki do projektu (dziennik budowy, tablica budowy).

Baza wiedzy

Zajrzyj także do naszej bazy wiedzy